B0202
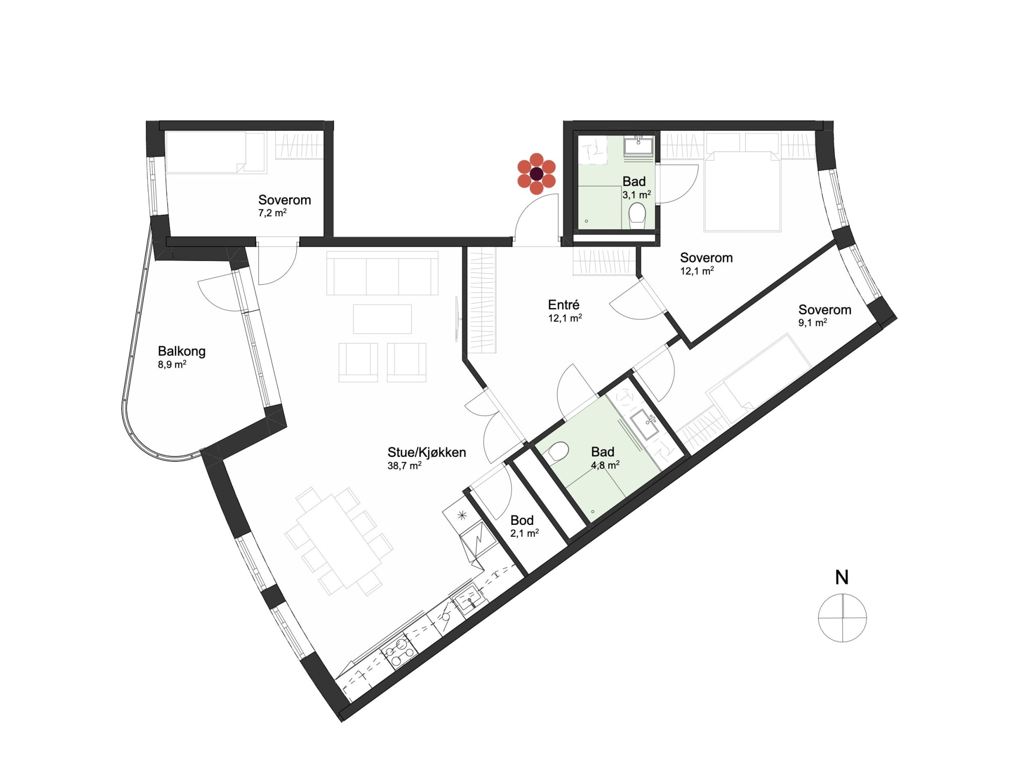
Gjennomgående fireroms med balkong mot vest. Åpent allrom med kjøkken og stue, samt innvendig bod. Tre soverom, to bad, hvor ett har direkte adkomst fra hovedsoverom, romslig gang med oppbevaringsplass.
Status
Ledig
ID
B0202
Pris
11 900 000
Soverom
3
BRA-i
94
BRA-e
5
Etasje
2
TBA m²
9
Omkostninger
90 190
Felleskostnader
5 560
