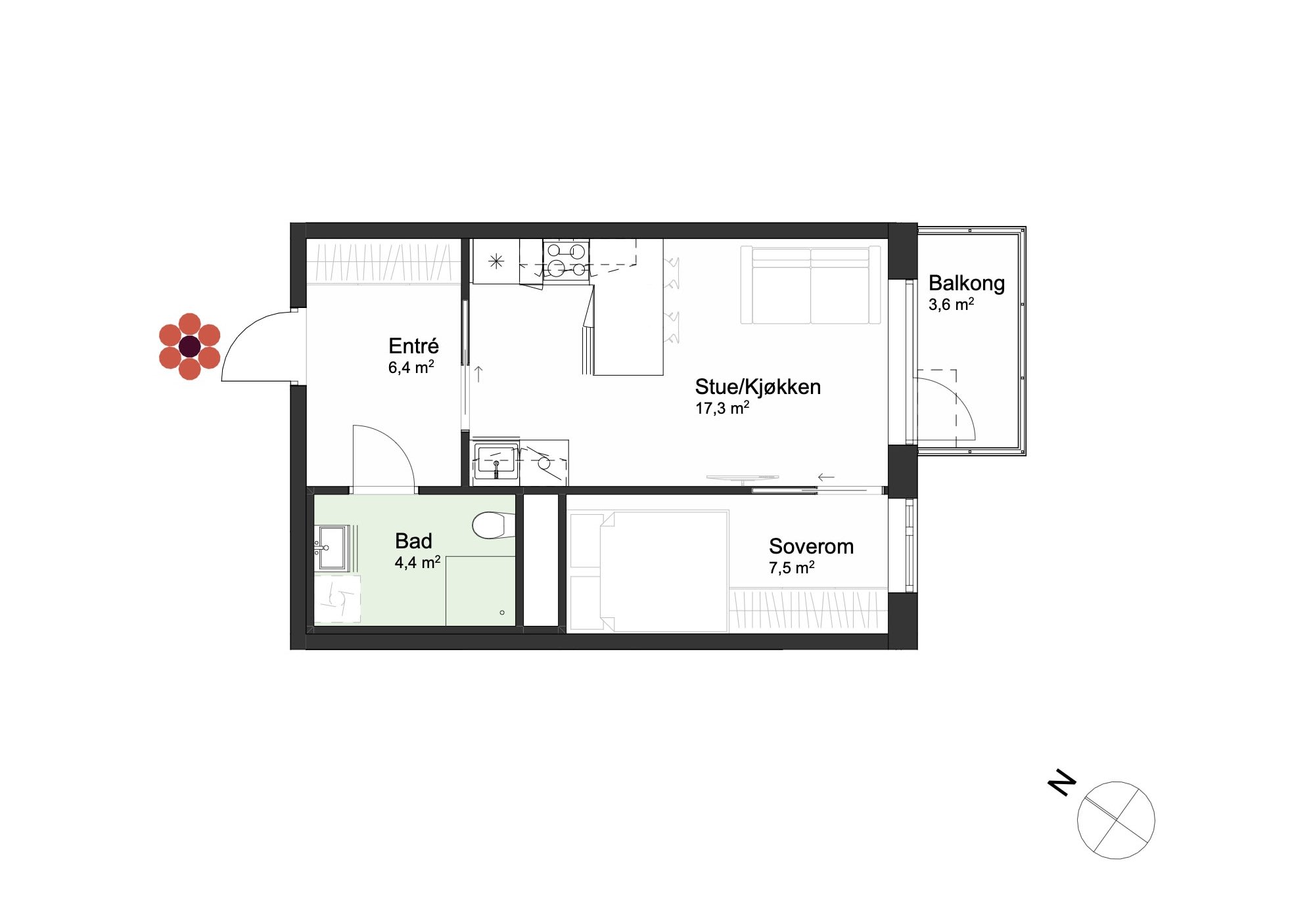
D0603
Toroms med balkong mot bakgård. Gang med gode oppbevaringsmuligheter, åpen stue-/kjøkkenløsning, soverom med adkomst via skyvedører.
Status
Ledig
ID
D0603
Pris
7 100 000
Soverom
1
BRA-i
38
BRA-e
3
Etasje
6
TBA m²
4
Omkostninger
37 090
Felleskostnader
3 111
